Stehender Dampfkessel
Eigenentwurf
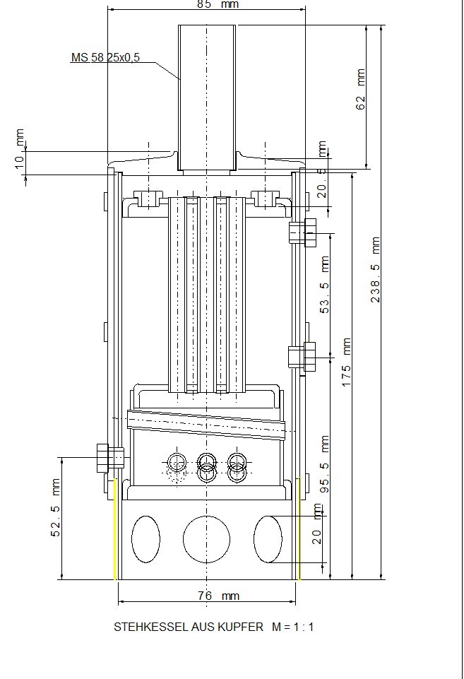
Für den Betrieb meiner Dampfmaschinen wollte ich einen Kessel bauen und habe zunächst den Entwurf gezeichnet.
Im Gegensatz zur Zeichnung wurden die Lüftungsöffnungen „als Besonderheit“ in der Bodenplatte angeordnet. Wahrscheinlich war der daraus resultierende zu geringe Öffnungsquerschnitt der Grund für die mangelnde Funktion.


Als Brennstoff war Esbit Trockenspiritus vorgesehen, die Lüftungsöffnungen in der Bodenplatte konnten durch Betätigen eines Hebels verschlossen werden. Außer als Raucherzeuger war der Kessel leider nutzlos, wenn auch ganz hübsch.
Bis auf das Manometer und einige Handräder wurden alle Teile selbst hergestellt
GJS 1997




